
Uncover the Baltic RV Park Mannequin from Amish Constructed Cabins—a farmhouse-inspired retreat that proves large fashion can are available compact packages. This RVIA-certified cell dwelling combines 396 sq. toes of thoughtfully designed inside house with a beneficiant 216-square-foot coated porch, creating 612 sq. toes of residing potential good for full-time residence, seasonal escape, or income-generating rental property.
Architectural Excellence in Compact Design

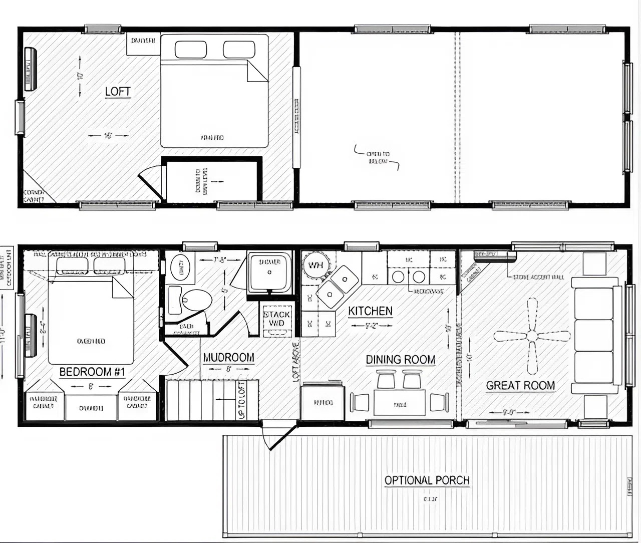
The Baltic showcases an 11×36-foot footprint that maximizes each inch with out sacrificing consolation. Hovering flat ceilings paired with dramatic A-frame home windows flood the house with pure gentle whereas creating an unexpectedly spacious ambiance. The signature triangular gable home windows add architectural curiosity and join residents to their environment, whether or not nestled in a wooded RV park or positioned on personal land.
Clever House Planning

Inside, the open nice room serves as the guts of this dwelling, that includes a built-in leisure middle and strategically positioned transom home windows that improve the ethereal ambiance. The total-appliance kitchen suite ensures meal preparation stays handy, whereas the hand-crafted staircase—a trademark of Amish craftsmanship—results in the 5-foot-tall loft bed room. This elevated sleeping quarters comfortably accommodates a king-size mattress, built-in chest of drawers, and leisure nook, proving that vertical house may be each practical and comfortable.
Farmhouse Appeal with Trendy Facilities

Uncovered beams all through the inside ship genuine farmhouse character whereas offering structural integrity. The loft options dimmable lighting and a big window for privateness and luxury, with customizable choices together with security railings or a full loft door to go well with particular person preferences. Sensible trendy conveniences embrace washer/dryer hookups designed for stackable items and a alternative between a 19-gallon water heater or an upgraded tankless system.
RVIA Certification Advantages

The Baltic’s RVIA certification represents greater than a high quality seal—it is a passport to placement flexibility. This designation permits house owners to place their cabin in any RV park throughout america, opening numerous location prospects. The certification additionally ensures the construction meets ANSI A119.5 requirements for security, sturdiness, and mobility.
Outside Dwelling Extension

The 6×36-foot coated porch basically creates a second front room uncovered to nature. This sheltered outside house stays usable throughout a number of seasons, offering 216 extra sq. toes for eating, rest, or entertaining whereas providing safety from climate components. The porch seamlessly extends the cabin’s livability whereas sustaining the compact footprint required for mobility.
Flip-Key Comfort
Delivered prepared for occupancy, the Baltic eliminates intensive preparation or modification necessities. The excellent bundle consists of all kitchen home equipment, the leisure middle, loft options, and full lighting and window installations. Homeowners can personalize with their very own furnishings and décor decisions, however the core construction arrives full and move-in prepared.
Versatile Software Potentialities
This park mannequin adapts to various way of life wants, comfortably sleeping as much as six folks. Whether or not serving as a main residence, trip hideaway, or revenue-generating rental property, the Baltic’s design helps a number of functions. The only-story most important flooring with loft configuration fits varied terrain sorts and may be built-in into permitted websites with correct basis and utility connections.
Placement Concerns
Whereas RVIA certification gives broad placement choices, potential house owners ought to analysis native rules governing park fashions of their goal location. Necessities could embrace particular permits for prolonged stays, septic system installations, or electrical hookups. The Baltic’s cell construction adapts to completely different basis techniques when native codes are correctly addressed.
Pure Mild Maximization
The strategic window design goes past aesthetics to boost vitality effectivity. Tall A-frame home windows and transom configurations seize most daylight all through the day, lowering synthetic lighting wants whereas creating visible connections to outside environment. This considerate glazing technique maintains the farmhouse aesthetic whereas supporting sustainable residing practices.
High quality Craftsmanship Requirements
Amish development methods emphasize sturdiness and a spotlight to element. The hand-built staircase, uncovered beam set up, and total construct high quality replicate conventional craftsmanship strategies that prioritize longevity. Supplies are chosen to face up to various climate circumstances whereas sustaining structural integrity throughout completely different climates.
Funding Alternative
Presently priced at $115,900 (decreased from the common $125,900), the Baltic represents accessible entry into cell or park mannequin residing. This funding consists of all commonplace options, home equipment, and the RVIA certification that allows nationwide placement flexibility. The turn-key supply mannequin eliminates hidden prices related to ending incomplete buildings.
Customization Choices
Past the usual configuration, house owners can personalize their Baltic with non-obligatory upgrades. The selection between loft railing or full door set up permits customization based mostly on furnishings entry wants and security preferences. The tankless water heater improve gives limitless sizzling water for these prioritizing that comfort.
Splendid Proprietor Profiles
The Baltic fits people or households searching for downsized residing with out compromising consolation, retirees wanting a seasonal retreat with minimal upkeep, or traders constructing rental property portfolios. Its measurement accommodates {couples} or small households whereas the loft gives separation between sleeping and residing areas that enhances privateness.
Availability and Ordering
Amish Constructed Cabins at the moment has the Baltic obtainable for fast order. Potential patrons can contact 812-595-4033 to order this mannequin on the present promotional pricing. The limited-time provide represents vital financial savings in comparison with the usual retail worth.
Sustainable Dwelling Resolution
Compact residing inherently reduces vitality consumption and environmental impression. The Baltic’s environment friendly flooring plan minimizes wasted house whereas the ample pure gentle reduces daytime electrical energy utilization. The smaller footprint requires much less heating and cooling in comparison with conventional houses, supporting eco-conscious way of life decisions.
Able to discover the Baltic RV Park Mannequin to your subsequent journey or residing scenario? Contact Amish Constructed Cabins as we speak to find how this farmhouse-inspired retreat can change into your customized sanctuary.
Supply: Amish Built Cabins (obtainable for $115,900)