
When most individuals consider tiny properties, they image solo adventurers or {couples} downsizing. However what if a household of 4 may thrive in compact quarters with out sacrificing consolation or model? The Ohana tiny house proves this is not simply attainable—it is sensible, lovely, and surprisingly spacious.
Modern Design Meets Household Dwelling

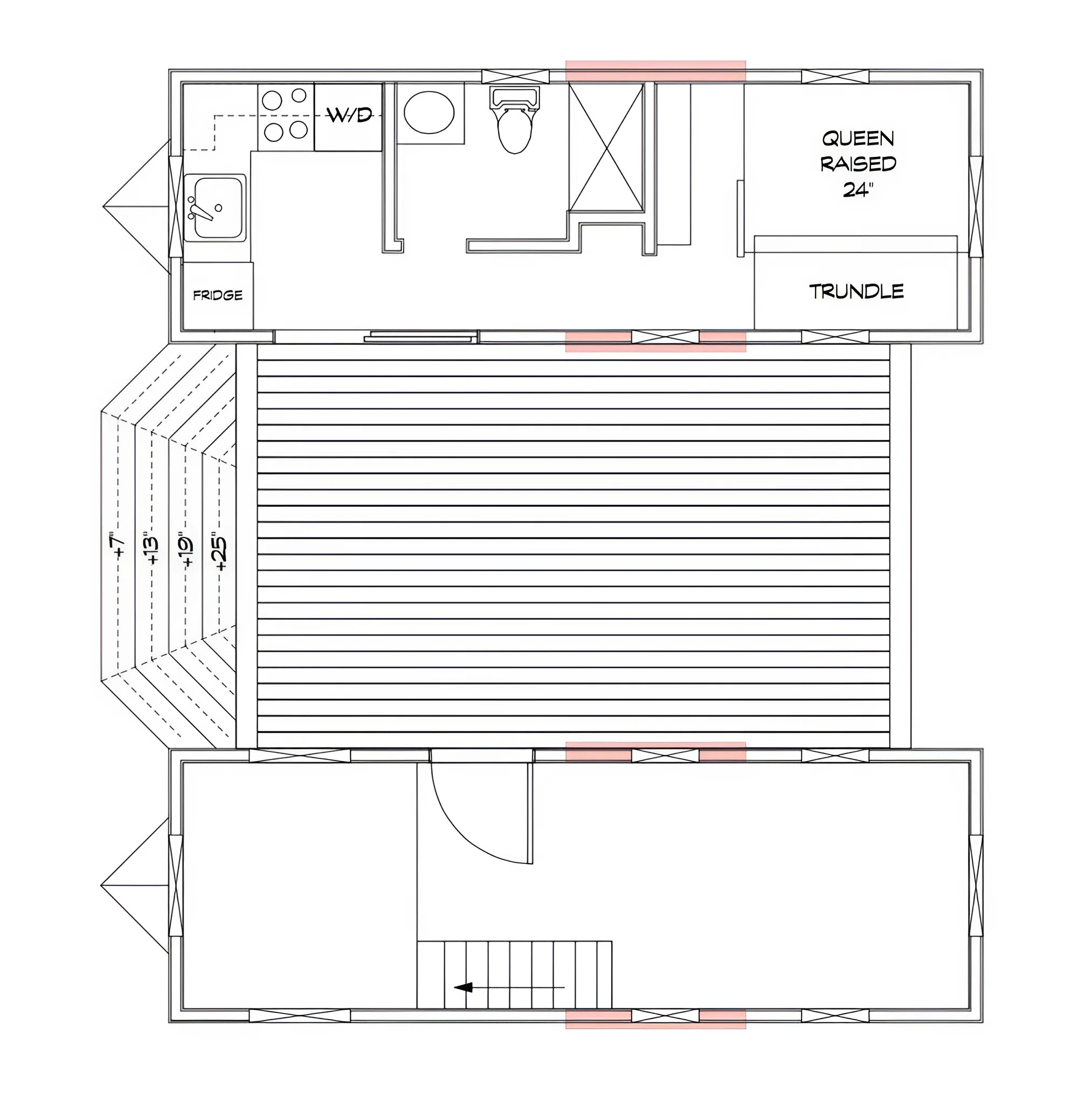
Created by VIVA Collectiv and architect Brian Crabb, the Ohana represents a daring reimagining of what tiny residing can supply households. Slightly than cramming everybody right into a single cramped trailer, this ingenious design connects two 24-foot tiny properties with an expansive sunroom, creating practically 600 sq. toes of thoughtfully allotted area.
The identify “Ohana” comes from the Hawaiian phrase for household—a becoming tribute to each the house’s goal and the unique house owners’ island roots. Inbuilt Portland, Oregon, this dual-trailer dwelling demonstrates how artistic structure can remedy the area challenges that sometimes rule out tiny properties for bigger households.
Sensible House Allocation Throughout Three Zones

The Kitchen and Grasp Suite
The primary 174-square-foot trailer serves as the first residing quarters for fogeys. Right here you may discover a totally practical kitchen full with fridge, compact range, mixture washer and dryer, and beneficiant counter area for meal preparation. Adjoining to the kitchen, the main bedroom gives a non-public retreat with tall home windows on a number of sides, flooding the area with pure gentle whereas sustaining an intimate ambiance.
Children’ Territory and Dwelling House

The second trailer mirrors the primary in measurement however dedicates its footprint to household gathering and youngsters’s sleeping areas. A cushty front room occupies the principle ground, whereas an modern vertical design stacks two bedrooms—one lofted above the opposite—creating non-public areas for siblings with out consuming valuable ground area.
The Glass-Roofed Coronary heart

Between these two trailers lies the house’s showpiece: a 240-square-foot sunroom with a clear glass roof. Proprietor Clayton Hanchett explains that this centerpiece drew inspiration from a Louis Vuitton seashore home design, tailored to go well with the Pacific Northwest local weather. The result’s a year-round indoor-outdoor area that brings Portland’s pure magnificence inside whereas defending inhabitants from the area’s frequent rainfall.
Sensible Options Value Noting
Maximizing Each Inch

Storage challenges plague most tiny properties, however the Ohana tackles this creatively. Constructed-in drawers and shelving items nestle beneath staircases, remodeling sometimes wasted area into practical storage. Each nook serves a goal, from kitchen cubbies to bed room closets.
Rest room Design That Impresses
Regardless of compact dimensions, the toilet would not really feel like an afterthought. A full-size bathtub anchors the area, surrounded by hanging tile work that evokes pure serenity and woodsy aesthetics. The considerate design maximizes usability whereas making a spa-like ambiance that belies the room’s modest footprint.
Home windows In every single place

Pure gentle transforms small areas, and the Ohana capitalizes on this precept all through. Strategically positioned home windows in each room create sight strains to the outside, making the 600 sq. toes really feel significantly bigger whereas sustaining the connection to nature that tiny house fans crave.
Versatility for Totally different Life
Full-Time Household Residence
The Ohana’s authentic goal—housing a household of 4 completely—stays its major energy. The separated sleeping areas present privateness for fogeys and children alike, whereas the central sunroom presents communal area for meals, homework, and household bonding.
Trip Retreat or Weekend Escape
The house’s design additionally excels as a seasonal getaway. The sunroom extends usable residing area throughout nice climate, whereas the insulated trailers present cozy shelter when temperatures drop. Whether or not nestled in woods or positioned close to water, the construction adapts to numerous landscapes.
Multi-Generational Options
City householders more and more search yard dwelling items for ageing dad and mom or grownup youngsters. The Ohana’s dual-trailer configuration helps this completely—one unit may home prolonged household whereas the opposite serves totally different family members, with the sunroom functioning as shared gathering area.
Revenue-Producing Rental
Listed at $100,000, this tiny house complicated may generate substantial rental earnings in trip markets or as distinctive long-term housing. The “wow issue” of the sunroom design provides it advertising attraction that customary tiny properties lack.
Actual Proprietor Perspective
Clayton Hanchett, who lives within the Ohana along with his household, enthusiastically shares the house with curious guests. “Most individuals say, ‘I may see myself residing right here. That is very doable,'” Hanchett advised Nation Dwelling. He notes that the house’s openness and intelligent design make it really feel inviting somewhat than cramped—a standard concern for these contemplating tiny residing.
The household particularly requested a design that will assist them really feel related to the outside year-round, one thing they missed after relocating from Hawaii to the Pacific Northwest. The expansive home windows and glass-roofed sunroom ship precisely that have, no matter Portland’s climate.
4-Season Performance
Winter Consolation
Portland winters convey rain somewhat than heavy snow, and the Ohana handles moist climate gracefully. Insulated trailer building retains warmth inside, whereas the sunroom’s glass roof permits passive photo voltaic warming on sunny winter days. The lined nature of the center part means outdoor-style residing stays attainable even throughout drizzly months.
Summer season Breeziness
When temperatures rise, the sunroom’s open design promotes air circulation all through the related constructions. A number of home windows in every trailer will be opened to create cross-breezes, stopping the stuffiness that plagues some compact dwellings.
Spring and Fall Transitions
The shoulder seasons showcase the Ohana’s design brilliance. Spring flowers will be loved from each angle, whereas autumn’s altering leaves turn out to be residing art work seen from the sunroom. The sturdy building withstands the wind that usually accompanies these transitional months.
Customization Prospects
Whereas the Ohana comes with primary fixtures and structure, new house owners can personalize the area extensively. The sunroom invitations artistic furnishing—from eating tables to lounging hammocks—relying on family priorities. Bed room configurations can adapt as youngsters develop, with loft areas transitioning from playrooms to teen hideaways.
The kitchen presents sufficient counter area for formidable house cooks, whereas the residing space can accommodate leisure methods or stay minimalist. The versatile basis permits the house to evolve alongside its inhabitants’ altering wants.
Sensible Issues for Patrons
Web site Necessities
The Ohana’s 12-foot by 34-foot footprint requires acceptable property. Potential places embrace rural acreage, coastal heaps, or city backyards with adequate area and utilities. Stage floor and connections for water, electrical energy, and sewage are important.
Upkeep Realities
Glass sunrooms demand common cleansing to keep up their transparency and attraction. The trailers themselves require customary tiny house maintenance: exterior weatherproofing, roof inspections, and utility system checks. Upkeep calls for range based mostly on native local weather and environmental publicity.
Funding Worth
At $100,000, the Ohana represents a major funding in comparison with single-trailer tiny properties. Nonetheless, the sq. footage, distinctive design, and family-sized capability justify the premium. The house’s look on Tiny Home Nation provides to its attraction and potential resale worth.
VIVA Collectiv’s Design Philosophy
This modern dwelling showcases architect Brian Crabb and VIVA Collectiv’s dedication to proving that tiny properties needn’t sacrifice model for affordability. Their portfolio contains tiny properties constructed worldwide, every demonstrating that compact residing will be each lovely and sensible.
The Ohana particularly addresses the misperception that tiny residing solely works for singles or {couples}. By pondering modularly and connecting separate constructions, Crabb created an answer that households can genuinely embrace long-term.
Extra Than Sq. Footage
Numbers inform solely a part of the Ohana story. Sure, it spans practically 600 sq. toes throughout two trailers and a sunroom. Sure, it sleeps 4 comfortably with separate sleeping zones. However the actual magic lies in how the design creates respiratory room regardless of compact dimensions.
The transparency of the glass roof, the strategic window placement, and the circulation between areas make the house really feel open somewhat than confining. Guests persistently specific shock at how livable the area feels—much more beneficiant than the sq. footage suggests.
A New Mannequin for Household Downsizing
The tiny house motion has lengthy struggled with the household query. Single adventurers and empty nesters naturally gravitate towards compact residing, however households with youngsters face respectable area considerations. The Ohana addresses this by creating zones that separate capabilities, steadiness togetherness with privateness, and show that households haven’t got to attend till children depart house to embrace less complicated residing.
For households overwhelmed by mortgage funds, infinite upkeep, and accumulating possessions, the Ohana presents an alternate pathway. It isn’t about deprivation or sacrifice; it is about intentional design that prioritizes what issues most.
Closing Ideas
The Ohana tiny house stands as a testomony to architectural creativity fixing real-world challenges. By connecting two trailers with an modern sunroom, VIVA Collectiv and Brian Crabb created one thing uncommon within the tiny house world: a family-sized dwelling that feels genuinely spacious.
Whether or not serving as a everlasting residence, trip retreat, or multi-generational compound, this 600-square-foot surprise demonstrates that compact residing would not require compromising consolation or model. For the fitting household, it represents not only a home, however a whole reimagining of what house will be.
Supply: Country Living
VIVA Collectiv